Perfect for early
site planning discussions
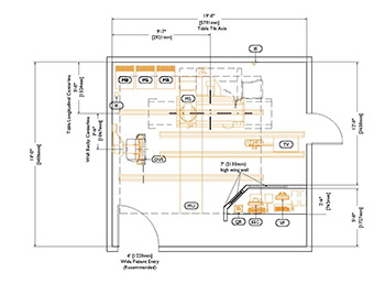
Philips preferred and interactive room layouts are designed to help architects, engineers and contractors as well as facilities personnel understand the basic implications of installing a Philips imaging system.
Here you'll have access to downloadable room layouts in pdf and, where available, in DWG and IRL PDF format.
Please note that, while extremely useful, the downloadable files in this section are not site specific or suitable for bidding purposes.

Our drawing packages will provide you with a look at:
In certain cases you may not be familiar with the imaging equipment your institution plans to install. Our 3D interactive room layouts (IRL) let you see the equipment as it looks in a standard room layout.
Each IRL includes:
Note: Due to their size, they maytake a couple of minutes to download.

You are about to visit a Philips global content page
ContinueWebová stránka je určena pouze osobám, které jsou odborníky (tj. osobám oprávněným zdravotnické prostředky předepisovat nebo vydávat), nebo zaměstnancům poskytovatele zdravotních služeb.
Jste osobou, která splňuje výše uvedená kritéria? Potvrzujete, že jste seznámeni s rizikem, že pokud budete pokračovat na tyto stránky, aniž jste osobou, která splňuje výše uvedená kritéria, hrozí, že informace tam obsažené budete nevhodně interpretovat a dojdete k mylným závěrům?